- 博物館文物展柜的獨特魅力您探索歷史的奧秘
- 杭州聯康展柜有限公司正月初八正式開工
- 冬藏珍瓏:守護展柜內的文明溫度
- 一個博物館展柜工廠對于南京博物院館捐獻名畫現身拍賣市場的看法
- 開封大學“博物館+”文化育人模式開啟高效文化宣傳新篇章
- 博物館展柜定制背后的“細微之處”:不僅是展示,更是對歷史的敬畏
聯系人:章先生
手機:188-5868-7779
電話:0571-89086171
郵箱:728526712@qq.com
地址:浙江省杭州市余杭區余杭街道圣地路9號
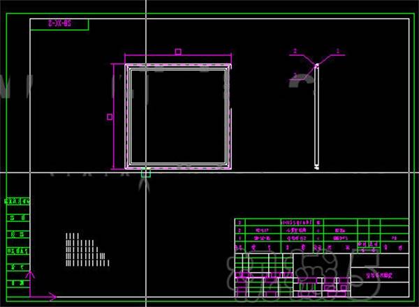
博物館展柜CAD圖紙是什么,為什么被廣泛使用?
對于廣大博物館來說展柜是最重要的展示器材之一,那么對于博物館展柜的設計一般是采用cad圖紙。那么什么是博物館的cad圖紙呢?今天就通過案例給大家簡單了解一下。

Cad圖紙技術產生于上世紀70年的美國,隨著計算機技術的興起和發展,相關的應用技術和輔助設計工具應運而生,在工業社會被廣泛使用。
Cad的圖紙一般要利用專業或者根據行業定制的cad圖紙經行編輯。Cad可以概括3大主要技術:
1,Cad圖紙的交互技術,們可以邊構思 、邊打樣、邊修改,隨時可從圖形終端屏幕上看到每一步操作的顯示結果,非常直觀。
2,圖形變換技術可以把用戶坐標系和圖形輸出設備的坐標系聯系起來,對圖形作平移、旋轉、縮放、透視變換等方式實現圖形變換。
3,實體及曲面造型技術可以實現計算機自身設計和研制過程的自動化或半自動化。

博物館展柜圖紙設計可以利用cad的眾多功能強大比如:·平面繪圖,三維繪圖,繪圖輔助工具,·數據交換,編輯圖形·,·網絡功能,標注尺寸,書寫文字,·圖層管理·等功能。
一般博物館展柜的設計圖都是因館而易。不同的裝飾風格會采用不同設計的展柜樣式及材料來實現整體的搭配。并且不同的展柜所采用的零部件也是可以通多cad圖紙經行標注。
上面圖片是聯康展柜為客戶設計的博物館獨立柜的cad設計圖,通過上賣弄的cad圖我們可以看到展柜的大致形式和詳細的尺寸等細節設計,通過這樣的CAD樣式圖博物館展柜廠家直接用于生產加工。

-
2025-12-23 18:54:12冬藏珍瓏:守護展柜內的文明溫度
-
2025-12-20 17:58:05一個博物館展柜工廠對于南京博物院館捐獻名畫現身拍賣市場的看法
-
2025-12-17 09:12:09開封大學“博物館+”文化育人模式開啟高效文化宣傳新篇章
-
2025-12-02 09:39:11博物館展柜定制背后的“細微之處”:不僅是展示,更是對歷史的敬畏
-
2025-11-05 09:20:57博物館文物展柜安全保障的四道屏障,共同守護一段無法復制的時光
-
2025-10-25 10:03:40專業展柜廠家揭秘文物展柜定制全流程,保障文物安全力度加滿



浙公網安備33011002018212號